Notice: Trying to get property of non-object in /home/doski/1.doski.z8.ru/docs/administrator/components/com_virtuemart/helpers/currencydisplay.php on line 57
Notice: Trying to get property of non-object in /home/doski/1.doski.z8.ru/docs/administrator/components/com_virtuemart/helpers/currencydisplay.php on line 58
Notice: Trying to get property of non-object in /home/doski/1.doski.z8.ru/docs/administrator/components/com_virtuemart/helpers/currencydisplay.php on line 59
ДО-015
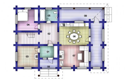
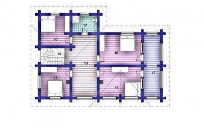
Проектная площадь: 283,75 м2 Общая площадь: 240,84 м2 Жилая площадь: 73,31 м2 Диаметр бревна: 300мм Площадь кровли: 257 м2 Размеры дома: 14,7х11,4 м
| ПЕРВЫЙ ЭТАЖ Проектная площадь: 152,76 м2 Общая площадь: 129,57 м2 Жилая площадь: 12,41 м2 Экспликация помещений 01-Тамбур: 6,00 м2 02-Прихожая: 18,09 м2 03-Бойлерная: 12,60 м2 04-Комната: 12,41 м2 05-Санузел: 6,00 м2 06-Кухня-столовая: 18,65 м2 07-Гостиная: 18,54 м2 08-Крыльцо: 4,59 м2 09-Веранда: 32,69 м2 | МАНСАРДНЫЙ ЭТАЖ Проектная площадь: 130,99 м2 Общая площадь: 111,27 м2 Жилая площадь: 60,90 м2 Экспликация помещений 10-Спальня: 12,41 м2 11-Cпальня: 12,60 м2 12-Санузел: 6,00 м2 13-Холл: 23,81 м2 14-Второй свет: 5,77 м2 15-Спальня: 18,00 м2 22-Спальня: 17,89 м2 23-Балкон: 14,79 м2 |






